0120-331-774
定休日/火 営業時間/9:30~17:30
ログイン
会員登録
※複数選択できます。Windows:[Ctrl]+クリック/Mac:[Command]+クリック
※サービスルーム(S)は、全ての検索条件に含まれます。
検索条件をクリアする
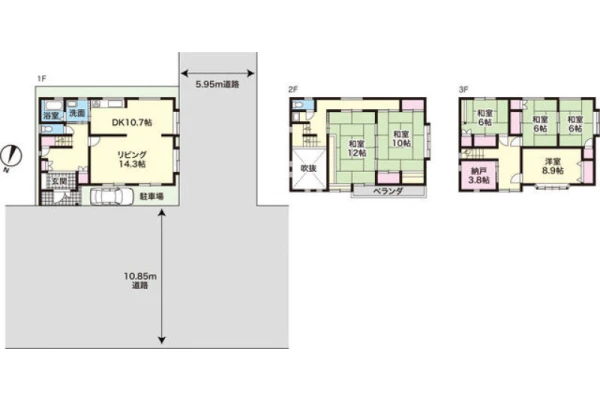
※地図上の「対象地」は実際の場所ではない場合があります。詳しくはお問い合わせください。
無料会員登録はこちら
ご来店予約はこちら
登録日:2026/4/3
登録日:2026/3/27
この物件をご覧頂くには、会員登録(無料)が必要です。
ホームページ上で公開されていない、店舗でのみ閲覧できる物件があります!!
来店限定物件120件大公開!
来店予約はこちら
登録日:2025/12/15
登録日:2025/11/7
登録日:2025/10/4
会社案内
店舗案内
中古を買ってリノベーション
よくある質問
スタッフ紹介